Start Fakta & information Bildgalleri
 

Ritningar över alla våra lägenheter kan du se
här nedanför tillsammans med information om
vår förening.

 

Kontaktinformation:
Telefon: 073-098 06 12 (röstbrevlåda när ingen finns tillgänglig på kontoret)
E-post: styrelsen@brfskogsglantan.se

Fastighetsskötsel:
Tommy Westerlund: 076-782 45 80 (vardagar kl 7-16, 7-13 dag före röd dag/helgdag)
E-post:skogsglantan@koping.net


  Fakta:

Tvättstugor:
2 st. med 6 st. tvättmaskiner, 2 st. torktumlare, 2 st. torkskåp och 2 st. manglar i varje.
Uthyrningslokaler:
45 st.
Garage:
88 st.
Parkeringsplatser:
245 st.
Fritidslokal:
Möblerad med fullt utrustat kök för medlemmarna att boka.
Vävstuga:
Nyttja för medlemmarna utan kostnad.
sopstationer:
4 st.
Service:
Egen fastighetsskötsel med bl.a. snöröjning och bortforsling av grovsopor varje fredag.
Fastighetsskötare:
2 st heltidsanställda.
Kontorstider reception:
Onsdagar kl. 16:00-18:00. Endast tidbokning 9:30-12:00, 13:00-16:00.
Telefon kontor 073-098 06 12. Röstbrevlåda när ingen finns tillgänglig på kontoret.
Ekonomisk förvaltare:
Ekonomihuset i Köping.
Styrelse:
6 st ledamöter och 1 st suppleant.


 

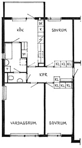
  Ritningar på alla våra olika lägenheter:

 

 

1 r.o.k. 47m²

 

2 r.o.k. 62.5m²

 

3 r.o.k. 82.5m²

 

3 r.o.k. 82.5m²

 

4 r.o.k. 98m² 5 r.o.k. 118m²